Living the Threshold
Vocational School in Balanka - Togo
Vocational School in Balanka - Togo
III. Semester / MA
Chair of Architectural Design and Participation
Chair of Architectural Design and Participation
The term threshold can be defined in many ways. The dictionary definition says its a barrier space that seperates volumes. This is not how I would define it. For me, it is the space that is fully in harmony with the inside and the outside. It embraces that space and creates a smooth transition.
The masterplan seperates the three main functions of the site - the vocational school, the student housing and the teacher housing. In the center are the agriculture fields located, connecting all functions together. Whereever you are on the site, you will be able to see the fields. The main entrance is located close to the city of Balanka, a second entrance is available for the teacher units.
Student Housing
The student housing works in an arrangement of modules. Each unit is structured by three layers. The first one is the arrival area, then the sleeping area and the terrace for studying. The modules form a courtyard so that the first layer creates a buffer zone for interaction and gathering. Furthermore it is creating a sense of community and enhancing communciation.
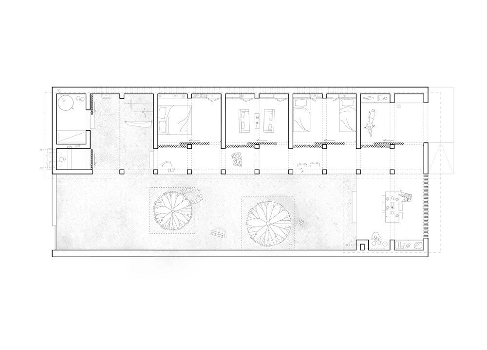
Teacher Housing
The teacher housing works in a row housing principle. Each unit is seperated by the courtyard of the next one. The floor plan functions as an L-shape typology. Central in this idea is the corridor that reduces or enlarges the space of the rooms. A courtyard as a gathering point for the whole family generates a unity feeling. Perforated walls are creating a cross ventilation that is cooling the interior. The toilets are positioned in distance of the living space.